027—82808289 / 18971556975
联系我们 / Contact us

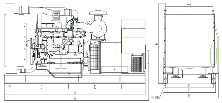
160KW~200KW陆用柴油发电机组

        该系列机组由上柴全资子公司上海伊华电站工程有限公司制造,联系方式:021-60652756 021-60652668。采用上海柴油机股份有限公司D系列电站柴油机作动力,标配自启动型,可选配ATS切换柜,形成自启动自切换机组。机组具有调压精度高、动态性能好、电压波形畸变小、效率高、工作可靠、使用寿命长、经济性能好等特点。机组配置全套免维护蓄电池启动系统,用户只需注入机油和冷却液、接通负极开关后就可启动机组,输出电力,极大提高了使用的便捷性。

  • 地址:武汉汉口北机电城W五区1103—1105
  • 电话:027—82808289 24小时服务热线:13971317893 13659858682
  • 版权所有:武汉聚农物联科技有限公司 【进入后台管理】